

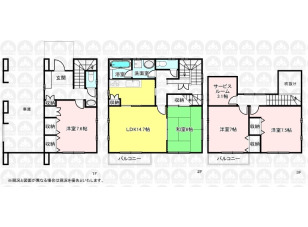
小屋裏収納付きの4LDK住宅/閑静な住宅地/収納豊富/陽当たり良好/南庭付き/全居室南向き
東京電力/公営水道/都市ガス/下水/シャンプードレッサー/浴室換気乾燥機/ウォシュレット/システムキッチン/浄水器/床下収納/出窓/フローリング/クローゼット/屋根裏収納

- 価 格
- 3480万円
- 所在地
- 東京都 小平市花小金井3丁目
- 交 通
- 西武鉄道新宿線「花小金井」駅 徒歩27分
- 建物面積
- 87.48m²
- 土地面積
- 109.43m²
- 間取り
- 4LDK
- 築年月
- 2003年9月
- 取扱店舗
清瀬店 -
TEL : 0120-953-813【通話料無料】お問い合わせ物件番号:15225092204
各居室6帖以上の広々4LDK!/閑静な住宅街に佇む庭付き一戸建!/全居室南向きで陽当・風通し良好です。
東京電力/公営水道/都市ガス/下水/追い焚き/シャンプードレッサー/浴室換気乾燥機/ウォシュレット/システムキッチン/浄水器/床下収納/出窓/フローリング/クローゼット

- 価 格
- 3480万円
- 所在地
- 東京都 小平市花小金井3丁目
- 交 通
- 西武鉄道新宿線「花小金井」駅 徒歩27分
中央本線「武蔵小金井」駅 バス23分 停歩9分
- 建物面積
- 87.48m²
- 土地面積
- 109.43m²
- 間取り
- 4LDK
- 築年月
- 2003年9月
- 取扱店舗
久米川店 -
TEL : 0120-964-139【通話料無料】お問い合わせ物件番号:13224101805
2025年7月リフォーム工事完了/オール電化住宅/西×北の公道に面する角地
東京電力/公営水道/オール電化/下水/IHクッキングヒーター/追い焚き/シャンプードレッサー/ウォシュレット/システムキッチン/浄水器/床下収納/出窓/フローリング/クローゼット/屋根裏収納

- 価 格
- 2499万円
- 所在地
- 東京都 東大和市高木2丁目
- 交 通
- 西武鉄道多摩湖線「武蔵大和」駅 徒歩17分
- 建物面積
- 96.84m²
- 土地面積
- 101.02m²
- 間取り
- 4LDK
- 築年月
- 1996年1月
- 取扱店舗
立川店 -
TEL : 0120-153-741【通話料無料】お問い合わせ物件番号:21225053001
広いルーフバルコニー/和室6帖を含む4LDK/角地で陽当たり良好/空家のためすぐに内見可能
東京電力/公営水道/都市ガス/下水/ウォシュレット/システムキッチン/出窓/フローリング/クローゼット/ルーフバルコニー

- 価 格
- 2180万円
- 所在地
- 東京都 清瀬市下宿1丁目
- 交 通
- 西武池袋・豊島線「清瀬」駅 バス8分 停歩4分
武蔵野線「東所沢」駅 徒歩37分
- 建物面積
- 91.50m²
- 土地面積
- 125.33m²
- 間取り
- 4LDK
- 築年月
- 1989年7月
- 取扱店舗
清瀬店 -
TEL : 0120-953-813【通話料無料】お問い合わせ物件番号:15225080806
スーパー徒歩10分以内!/周辺商業施設多数あり!
東京電力/公営水道/プロパン(個別)/下水/対面キッチン/追い焚き/シャンプードレッサー/ウォシュレット/システムキッチン/フローリング/クローゼット

- 価 格
- 2397万円
- 所在地
- 埼玉県 川越市大字小仙波
- 交 通
- 西武鉄道新宿線「本川越」駅 徒歩26分
東武鉄道東上線「川越」駅 徒歩30分
- 建物面積
- 97.20m²
- 土地面積
- 103.67m²
- 間取り
- 4LDK
- 築年月
- 2004年8月
- 取扱店舗
川越店 -
TEL : 0120-938-426【通話料無料】お問い合わせ物件番号:08225092101
内・外装リフォーム住宅/全室コンセント・スイッチ・シーリング交換予定/クロス・床張替予定/防蟻工事予定
東京電力/公営水道/プロパン(個別)/下水/シャンプードレッサー/システムキッチン/出窓/フローリング/クローゼット

- 価 格
- 1999万円
- 所在地
- 埼玉県 坂戸市中富町
- 交 通
- 東武鉄道東上線「坂戸」駅 徒歩13分
東武鉄道越生線「坂戸」駅 徒歩13分
- 建物面積
- 90.47m²
- 土地面積
- 113.23m²
- 間取り
- 3LDK
- 築年月
- 1982年4月
- 取扱店舗
坂戸店 -
TEL : 0120-935-219【通話料無料】お問い合わせ物件番号:06225091201
3方角地の戸建てです/陽当・眺望良好/平成25年築/リフォーム履歴あり/雨に濡れにくいビルトインガレージ付
東京電力/公営水道/都市ガス/下水/対面キッチン/追い焚き/シャンプードレッサー/ウォシュレット/システムキッチン/食器洗浄乾燥器/フローリング/クローゼット/バリアフリー

- 価 格
- 3340万円
- 所在地
- 埼玉県 志木市幸町4丁目
- 交 通
- 東武鉄道東上線「柳瀬川」駅 徒歩12分
東武鉄道東上線「志木」駅 徒歩21分
- 建物面積
- 79.57m²
- 土地面積
- 64.66m²
- 間取り
- 3LDK
- 築年月
- 2013年5月
- 取扱店舗
志木店 -
TEL : 0120-937-472【通話料無料】お問い合わせ物件番号:09225081701
中宗岡5丁目4.5m公道面2階建て邸宅です/カースペース2台可(車種による)/リビングガス床暖房あり
東京電力/公営水道/都市ガス/下水/対面キッチン/追い焚き/シャンプードレッサー/浴室換気乾燥機/ウォシュレット/システムキッチン/食器洗浄乾燥器/浄水器/床下収納/ウォークインクローゼット/フローリング/床暖房/クローゼット

- 価 格
- 3490万円
- 所在地
- 埼玉県 志木市中宗岡5丁目
- 交 通
- 東武鉄道東上線「志木」駅 徒歩26分
東武鉄道東上線「志木」駅 バス8分 停歩7分
- 建物面積
- 98.40m²
- 土地面積
- 100.02m²
- 間取り
- 2LDK
- 築年月
- 2017年11月
- 取扱店舗
志木店 -
TEL : 0120-937-472【通話料無料】お問い合わせ物件番号:09225101203
リフォーム済/セキスイハイム施工の軽量鉄骨造/1階LD床暖房有/納戸付/駐車場1台有/小・中学校徒歩10分圏内
東京電力/公営水道/都市ガス/下水/対面キッチン/追い焚き/システムキッチン/フローリング/床暖房/クローゼット

- 価 格
- 2490万円
- 所在地
- 埼玉県 坂戸市伊豆の山町
- 交 通
- 東武鉄道東上線「北坂戸」駅 徒歩15分
東武鉄道越生線「坂戸」駅 徒歩32分
- 建物面積
- 114.90m²
- 土地面積
- 148.76m²
- 間取り
- 4SLDK
- 築年月
- 1997年9月
- 取扱店舗
坂戸店 -
TEL : 0120-935-219【通話料無料】お問い合わせ物件番号:06225101201
LDK約17.4帖/対面キッチンで開放感・通風良好/カースペース2台(車種による)/リビングイン階段
東京電力/公営水道/オール電化/下水/対面キッチン/シャンプードレッサー/浴室換気乾燥機/ウォシュレット/システムキッチン/食器洗浄乾燥器/浄水器/床下収納/ウォークインクローゼット/フローリング/クローゼット/バリアフリー/住宅性能評価付き/太陽光発電システム/建設住宅性能評価付/長期優良住宅

- 価 格
- 3980万円
- 所在地
- 東京都 立川市砂川町4丁目
- 交 通
- 多摩モノレール「砂川七番」駅 徒歩23分
- 建物面積
- 91.08m²
- 土地面積
- 120.99m²
- 間取り
- 3LDK
- 築年月
- 2012年11月
- 取扱店舗
立川店 -
TEL : 0120-153-741【通話料無料】お問い合わせ物件番号:21225101203
東1丁目の3階建て邸宅です/カースペース1台可(車種による)/納戸付き18帖の広々LDK
その他/公営水道/都市ガス/下水/追い焚き/シャンプードレッサー/浴室換気乾燥機/ウォシュレット/システムキッチン/食器洗浄乾燥器/浄水器/床下収納/フローリング/クローゼット/ルーフバルコニー

- 価 格
- 3798万円
- 所在地
- 埼玉県 新座市東1丁目
- 交 通
- 東武鉄道東上線「志木」駅 徒歩22分
武蔵野線「新座」駅 徒歩22分
- 建物面積
- 100.18m²
- 土地面積
- 66.73m²
- 間取り
- 2LDK
- 築年月
- 2023年3月
- 取扱店舗
志木店 -
TEL : 0120-937-472【通話料無料】お問い合わせ物件番号:09225101204
土地71坪/カースペース2台可/LDK22帖対面キッチン/新規内装リフォーム済/空家なのでいつでも見学可!
東京電力/公営水道/都市ガス/下水/対面キッチン/追い焚き/シャンプードレッサー/浴室換気乾燥機/ウォシュレット/システムキッチン/浄水器/床下収納/ウォークインクローゼット/出窓/フローリング/クローゼット/バリアフリー

- 価 格
- 4599万円
- 所在地
- 埼玉県 さいたま市 緑区大字大牧
- 交 通
- 武蔵野線「東浦和」駅 徒歩22分
京浜東北・根岸線「浦和」駅 バス21分 停歩4分
- 建物面積
- 152.36m²
- 土地面積
- 236.70m²
- 間取り
- 4LDK
- 築年月
- 2003年3月
- 取扱店舗
浦和店 -
TEL : 0120-550-533【通話料無料】お問い合わせ物件番号:18225051701
二沿線利用可/新規内装リフォーム済/5LDK/ワイドスパンバルコニー/収納豊富/空家なのでいつでも見学可!
東京電力/公営水道/都市ガス/下水/シャンプードレッサー/浴室換気乾燥機/ウォシュレット/システムキッチン/食器洗浄乾燥器/出窓/フローリング/クローゼット

- 価 格
- 3799万円
- 所在地
- 埼玉県 さいたま市 南区大字大谷口
- 交 通
- 武蔵野線「東浦和」駅 徒歩17分
京浜東北・根岸線「浦和」駅 バス19分 停歩5分
- 建物面積
- 129.04m²
- 土地面積
- 174.14m²
- 間取り
- 5LDK
- 築年月
- 2002年6月
- 取扱店舗
浦和店 -
TEL : 0120-550-533【通話料無料】お問い合わせ物件番号:18225080902
2025年10月新規リフォーム/LDK15.7帖/西国立駅まで徒歩12分
東京電力/公営水道/都市ガス/下水/追い焚き/シャンプードレッサー/浴室換気乾燥機/ウォシュレット/システムキッチン/浄水器/床下収納/フローリング/クローゼット/屋根裏収納/バリアフリー/フラット35適合証明書

- 価 格
- 4799万円
- 所在地
- 東京都 立川市錦町6丁目
- 交 通
- 南武線「西国立」駅 徒歩12分
- 建物面積
- 80.59m²
- 土地面積
- 87.45m²
- 間取り
- 3LDK
- 築年月
- 2004年1月
- 取扱店舗
立川店 -
TEL : 0120-153-741【通話料無料】お問い合わせ物件番号:21225101101
東武東上線「ふじみ野」駅徒歩9分/区画整理地内/6m道路/住環境良好/シャッター付ガレージ2台駐車可能
東京電力/公営水道/都市ガス/下水/シャンプードレッサー/浴室換気乾燥機/ウォシュレット/システムキッチン/出窓/フローリング/クローゼット/バリアフリー/太陽光発電システム

- 価 格
- 4580万円
- 所在地
- 埼玉県 ふじみ野市旭1丁目
- 交 通
- 東武鉄道東上線「ふじみ野」駅 徒歩9分
- 建物面積
- 185.84m²
- 土地面積
- 142.30m²
- 間取り
- 4SLDK
- 築年月
- 1997年4月
- 取扱店舗
ふじみ野店 -
TEL : 0120-964-208【通話料無料】お問い合わせ物件番号:14225082904
土地40坪/LDK20帖/全居室8帖以上/都市ガス・本下水/閑静な住宅地/ワイドバルコニー
東京電力/公営水道/都市ガス/下水/システムキッチン/クローゼット

- 価 格
- 2499万円
- 所在地
- 埼玉県 川越市稲荷町
- 交 通
- 東武鉄道東上線「上福岡」駅 徒歩15分
- 建物面積
- 123.24m²
- 土地面積
- 132.92m²
- 間取り
- 3LDK
- 築年月
- 1989年11月
- 取扱店舗
ふじみ野店 -
TEL : 0120-964-208【通話料無料】お問い合わせ物件番号:14225031505
陽当良好/広々バルコニー/閑静な住宅地/収納豊富/エアコン・照明器具・ダイニングテーブル・ブラインド付き
東京電力/公営水道/都市ガス/下水/シャンプードレッサー/ウォシュレット/システムキッチン/食器洗浄乾燥器/浄水器/フローリング

- 価 格
- 2800万円
- 所在地
- 埼玉県 富士見市貝塚1丁目
- 交 通
- 東武鉄道東上線「みずほ台」駅 徒歩22分
東武鉄道東上線「志木」駅 バス23分 停歩7分
- 建物面積
- 96.87m²
- 土地面積
- 60.20m²
- 間取り
- 3LDK
- 築年月
- 2023年1月
- 取扱店舗
ふじみ野店 -
TEL : 0120-964-208【通話料無料】お問い合わせ物件番号:14225030702
角地につき陽当たり・通風良好/オール電化住宅(蓄電池あり)/令和7年9月ハウスクリーニング済
東京電力/公営水道/オール電化/下水/シャンプードレッサー/浴室換気乾燥機/ウォシュレット/システムキッチン/床下収納/フローリング/クローゼット/屋根裏収納/太陽光発電システム

- 価 格
- 1980万円
- 所在地
- 埼玉県 所沢市大字牛沼
- 交 通
- 西武池袋・豊島線「所沢」駅 徒歩24分
西武鉄道新宿線「所沢」駅 バス8分 停歩4分
- 建物面積
- 76.18m²
- 土地面積
- 77.05m²
- 間取り
- 4DK
- 築年月
- 1998年11月
- 取扱店舗
新所沢店 -
TEL : 0120-934-341【通話料無料】お問い合わせ物件番号:02225101001
幸町1丁目の3階建て邸宅です/カースペース1台可(車種による)/エコキュート新規交換オール電化住宅です
東京電力/公営水道/オール電化/下水/追い焚き/シャンプードレッサー/浴室換気乾燥機/ウォシュレット/システムキッチン/食器洗浄乾燥器/浄水器/フローリング/クローゼット

- 価 格
- 3199万円
- 所在地
- 埼玉県 朝霞市幸町1丁目
- 交 通
- 東武鉄道東上線「朝霞」駅 徒歩17分
東武鉄道東上線「和光市」駅 徒歩38分
- 建物面積
- 77.63m²
- 土地面積
- 63.99m²
- 間取り
- 3LDK
- 築年月
- 1998年11月
- 取扱店舗
志木店 -
TEL : 0120-937-472【通話料無料】お問い合わせ物件番号:09225062601
軽量鉄骨造/45坪以上のゆとりある敷地/2沿線以上利用可能
東京電力/公営水道/都市ガス/下水/対面キッチン/ウォシュレット/システムキッチン/食器洗浄乾燥器

- 価 格
- 4980万円
- 所在地
- 東京都 国分寺市西元町3丁目
- 交 通
- 中央本線「国分寺」駅 徒歩21分
武蔵野線「北府中」駅 徒歩17分
- 建物面積
- 116.13m²
- 土地面積
- 150.65m²
- 間取り
- 2SLDK
- 築年月
- 1998年6月
- 取扱店舗
国分寺店 -
TEL : 0120-934-691【通話料無料】お問い合わせ物件番号:16225081601
南西角地につき陽当り良好/住環境良好/LDK18.9帖
東京電力/公営水道/都市ガス/下水/対面キッチン/追い焚き/シャンプードレッサー/ウォシュレット/システムキッチン/フローリング/クローゼット/バリアフリー

- 価 格
- 2180万円
- 所在地
- 埼玉県 狭山市広瀬東4丁目
- 交 通
- 西武鉄道新宿線「狭山市」駅 バス18分 停歩4分
- 建物面積
- 90.25m²
- 土地面積
- 86.87m²
- 間取り
- 4LDK
- 築年月
- 2020年11月
- 取扱店舗
狭山店 -
TEL : 0120-935-983【通話料無料】お問い合わせ物件番号:04225092701
無垢材や漆喰の自然素材を使用したリノベーション住宅/カースペース2台(車種による)/アイランドキッチン
東京電力/公営水道/都市ガス/下水/対面キッチン/追い焚き/シャンプードレッサー/浴室換気乾燥機/ウォシュレット/システムキッチン/浄水器/フローリング/クローゼット

- 価 格
- 2880万円
- 所在地
- 埼玉県 狭山市柏原
- 交 通
- 西武鉄道新宿線「新狭山」駅 バス9分 停歩6分
西武鉄道新宿線「狭山市」駅 バス14分 停歩3分
- 建物面積
- 96.05m²
- 土地面積
- 183.89m²
- 間取り
- 3LDK
- 築年月
- 1980年6月
- 取扱店舗
狭山店 -
TEL : 0120-935-983【通話料無料】お問い合わせ物件番号:04225062201
閑静な住宅地/2024年築の中古住宅/住環境良好/3SLDK
東京電力/公営水道/都市ガス/下水/対面キッチン/追い焚き/シャンプードレッサー/浴室換気乾燥機/ウォシュレット/システムキッチン/浄水器/フローリング/クローゼット

- 価 格
- 4880万円
- 所在地
- 埼玉県 所沢市美原町4丁目
- 交 通
- 西武鉄道新宿線「新所沢」駅 徒歩15分
- 建物面積
- 94.39m²
- 土地面積
- 100.05m²
- 間取り
- 3SLDK
- 築年月
- 2024年2月
- 取扱店舗
新所沢店 -
TEL : 0120-934-341【通話料無料】お問い合わせ物件番号:02225051001
全居室2面採光に付き、陽当良好/東武東上線「志木」駅徒歩12分/全室フローリング
東京電力/公営水道/都市ガス/下水/IHクッキングヒーター/追い焚き/ウォシュレット/システムキッチン/フローリング

- 価 格
- 1380万円
- 所在地
- 埼玉県 新座市北野3丁目
- 交 通
- 東武鉄道東上線「志木」駅 徒歩12分
武蔵野線「新座」駅 バス8分 停歩8分
- 建物面積
- 38.00m²
- 土地面積
- 46.64m²
- 間取り
- 2K
- 築年月
- 1964年1月
- 取扱店舗
志木店 -
TEL : 0120-937-472【通話料無料】お問い合わせ物件番号:09225010901
北東北西角地につき通風・日当たり良好/カースペース2台可(車種による)
東京電力/公営水道/都市ガス/下水/対面キッチン/追い焚き/シャンプードレッサー/浴室換気乾燥機/ウォシュレット/システムキッチン/浄水器/床下収納/フローリング/クローゼット

- 価 格
- 3780万円
- 所在地
- 埼玉県 新座市野火止1丁目
- 交 通
- 武蔵野線「新座」駅 徒歩19分
東武鉄道東上線「朝霞台」駅 バス9分 停歩3分
- 建物面積
- 90.72m²
- 土地面積
- 100.12m²
- 間取り
- 3LDK
- 築年月
- 2020年8月
- 取扱店舗
志木店 -
TEL : 0120-937-472【通話料無料】お問い合わせ物件番号:09224121209
令和3年4月築の邸宅です/LDK13.9帖/2路線3駅利用可/全室3面採光
東京電力/公営水道/プロパン(集中)/下水/追い焚き/シャンプードレッサー/ウォシュレット/システムキッチン

- 価 格
- 2890万円
- 所在地
- 埼玉県 新座市東1丁目
- 交 通
- 東武鉄道東上線「朝霞台」駅 徒歩20分
東武鉄道東上線「志木」駅 徒歩20分
- 建物面積
- 73.00m²
- 土地面積
- 44.12m²
- 間取り
- 2SLDK
- 築年月
- 2021年4月
- 取扱店舗
志木店 -
TEL : 0120-937-472【通話料無料】お問い合わせ物件番号:09224121208
1・2階に和室6帖が各1部屋あります/TAIRAYA三原店まで約170mと日々の生活が便利です。
東京電力/公営水道/プロパン(個別)/下水/床下収納

- 価 格
- 2490万円
- 所在地
- 埼玉県 朝霞市三原1丁目
- 交 通
- 東武鉄道東上線「朝霞台」駅 徒歩12分
東武鉄道東上線「志木」駅 徒歩17分
- 建物面積
- 69.46m²
- 土地面積
- 59.00m²
- 間取り
- 4DK
- 築年月
- 1986年1月
- 取扱店舗
志木店 -
TEL : 0120-937-472【通話料無料】お問い合わせ物件番号:09224111705
南・東2方向接道の角地邸宅です/16.0帖の南向きリビング
東京電力/公営水道/都市ガス/下水/対面キッチン/追い焚き/シャンプードレッサー/ウォシュレット/システムキッチン/フローリング/クローゼット

- 価 格
- 3380万円
- 所在地
- 埼玉県 新座市東1丁目
- 交 通
- 東武鉄道東上線「志木」駅 徒歩22分
東武鉄道東上線「朝霞台」駅 徒歩21分
- 建物面積
- 102.67m²
- 土地面積
- 100.62m²
- 間取り
- 2LDK
- 築年月
- 1983年2月
- 取扱店舗
志木店 -
TEL : 0120-937-472【通話料無料】お問い合わせ物件番号:09224111704
カースペース2台可(車種による)/2階広々リビング/1階キッチン付き/3階ワイドバルコニー
東京電力/公営水道/オール電化/下水/対面キッチン/IHクッキングヒーター/追い焚き/シャンプードレッサー/浴室換気乾燥機/ウォシュレット/システムキッチン/食器洗浄乾燥器/浄水器/フローリング/クローゼット

- 価 格
- 3980万円
- 所在地
- 埼玉県 川越市稲荷町
- 交 通
- 東武鉄道東上線「上福岡」駅 徒歩16分
東武鉄道東上線「新河岸」駅 徒歩19分
- 建物面積
- 144.49m²
- 土地面積
- 105.90m²
- 間取り
- 4LDK
- 築年月
- 2007年3月
- 取扱店舗
志木店 -
TEL : 0120-937-472【通話料無料】お問い合わせ物件番号:09224111006
バルコニー4ヶ所物件/陽当・住環境良好/カースペース2台可(車種による)/収納豊富/1階洋室にWIC付き
東京電力/公営水道/都市ガス/下水/対面キッチン/追い焚き/シャンプードレッサー/浴室換気乾燥機/ウォシュレット/システムキッチン/ウォークインクローゼット/フローリング

- 価 格
- 2880万円
- 所在地
- 埼玉県 入間郡 三芳町大字藤久保
- 交 通
- 東武鉄道東上線「鶴瀬」駅 徒歩14分
東武鉄道東上線「みずほ台」駅 徒歩23分
- 建物面積
- 90.92m²
- 土地面積
- 86.85m²
- 間取り
- 3LDK
- 築年月
- 2006年9月
- 取扱店舗
志木店 -
TEL : 0120-937-472【通話料無料】お問い合わせ物件番号:09224110910