昭島市中神町 中古一戸建て
- 一部新規リフォーム済み/南向きバルコニー/各居室収納あり/二路線利用可能
- 価 格
-
3680万円
-
- 所在地
- 東京都 昭島市中神町
- 交 通
- 青梅線「中神」駅 徒歩20分
西武鉄道拝島線「武蔵砂川」駅 徒歩18分
- 建物面積
- 89.70m²
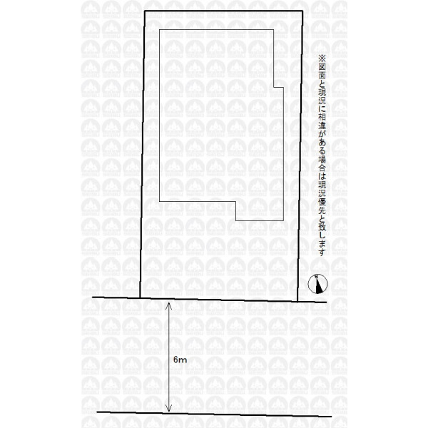
- 土地面積
- 100.00m²
- 間取り
- 3LDK
- 築年月
- 1996年3月
おすすめポイント
物件詳細
| 価 格 | 3680万円(税込) | ||
|---|---|---|---|
| 所在地 | 東京都 昭島市中神町 | ||
| 交 通 | (1)青梅線「中神」駅 徒歩20分 (2)西武鉄道拝島線「武蔵砂川」駅 徒歩18分 |
||
| 建物面積 | 89.70m²(公簿) | 間取り | 3LDK |
| 築年月 | 1996年3月 | 構 造 | 木造/地上2階建て |
| 設 備 | 東京電力/公営水道/プロパン(個別)/下水/シャンプードレッサー/ウォシュレット/システムキッチン/浄水器/フローリング/クローゼット | ||
| リフォーム | 2025年9月 リフォーム済 キッチン・ユニットバス・洗面所交換/屋根塗装等 |
||
| 土地面積 | 100.00m²(公簿) | 土地権利 | 所有権 |
| セットバック | 無 | 私道負担面積 | 無 |
| 都市計画 | 市街化区域 | 用途地域 | 第一種中高層住居専用地域 |
| 建ぺい率 | 60% | 容積率 | 200% |
| 地目 | 宅地 | 現況 | 空家 |
| 国土法届出 | 不要 | 駐車場 | 有 1台 |
| 接道状況 | 一方 南側6.00m公道 | ||
| 周辺環境 | 武蔵野小学校(約700m) 瑞雲中学校(約1,600m) TAIRAYA中神店(約220m) |
||
| 建築確認番号 | - | ||
| 備 考 | |||
| 引渡時期 | 相談 | 取引態様 | 仲介 |
| 最終情報更新日 | 2025年10月9日 | 更新予定日 | 2025年10月23日 |






