東久留米市下里2丁目 土地
- 家族のライフスタイルに合わせた間取り設計が可能。理想の空間をカスタマイズできます。
- 価 格
-
1890万円
- 所在地
- 東京都 東久留米市下里2丁目
- 交 通
- 西武池袋・豊島線「東久留米」駅 徒歩34分
西武池袋・豊島線「東久留米」駅 バス16分 停歩8分
- 建築条件
- 有
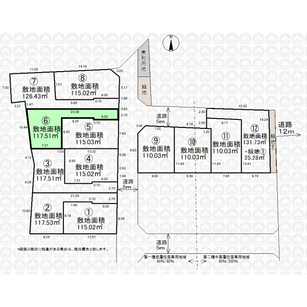
- 土地面積
- 117.51m²
おすすめポイント
物件詳細
| 価 格 | 1890万円(税無) /坪単価53.17万円 | ||
|---|---|---|---|
| 所在地 | 東京都 東久留米市下里2丁目 | ||
| 交 通 | (1)西武池袋・豊島線「東久留米」駅 徒歩34分 (2)西武池袋・豊島線「東久留米」駅 バス16分「都大橋」停歩8分 |
||
| 設 備 | 東京電力/公営水道/都市ガス/下水 | ||
| 土地面積 | 117.51m²(実測) /35.5坪 | 土地権利 | 所有権 |
| セットバック | 無 | 私道負担面積 | 無 |
| 都市計画 | 市街化区域 | 用途地域 | 第一種低層住居専用地域 |
| 建ぺい率 | 40% | 容積率 | 80% |
| 地目 | 田 | 現況 | 更地 |
| 国土法届出 | 不要 | 地勢 | 平坦 |
| 接道状況 | 一方 東側5.00m公道(2.70m接道) | ||
| 周辺環境 | 東久留米市立第七小学校(約650m) 東村山市立下里中学校(約1,100m) ウエルシア(約550m) セブンイレブン(約550m) はくさん保育園(約750m) 滝山病院(約1,100m) 久留米神明幼稚園(約1,400m) 白山公園(約700m) 西友(約800m) イオンモール(約2,100m) |
||
| 建築条件 | 有 | ||
| 備 考 | 開発総面積:1710.84m2/開発許可番号:7多建開二開第91号/未利用地持分約1.42m2/緑地持分約2.36m2/景観法/第一種高度地区/法22条区域/絶対高さ制限10m/建物価格:1500万円(税込)・土地建物総額:3390万円(税込)/引渡しまでに売主負担にて地目を宅地に変更します/分筆前につき分筆後地積の増減が生じる場合があります |
||
| 引渡時期 | 相談 | 取引態様 | 仲介 |
| 最終情報更新日 | 2025年11月27日 | 更新予定日 | 2025年12月11日 |






